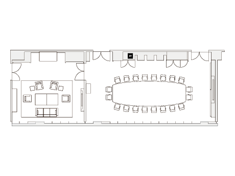
This sophisticated conference room is perfect for highly confidential meetings and business discussions, as well as 20-person training sessions. In addition to the full-fledged conference room itself, with its large 98-inch monitor, there is also a front room. It is a highly secure area that can be accessed directly from the vehicle drop off area, so you can feel at ease welcoming VIPs from Japan or abroad. The front room can not only be used as a waiting room, but also for coffee breaks or a reception party space.

Dedicated front room (64 ㎡) that can be used as a break room or as a waiting room

Directly accessible from the vehicle drop off area
| Capacity | 20 people | ||||||||
|---|---|---|---|---|---|---|---|---|---|
| Size | 115㎡ | ||||||||
| Ceiling height | 3.5m | ||||||||
| Pricing |
|
Feel free to contact us to check on room availability or to see the room
| Room name | Capacity/size | People | Price※1 | ||||||||
|---|---|---|---|---|---|---|---|---|---|---|---|
| Area/ceiling height | Classroom | Island | Square | Theater | Standing reception | One day(9:00 a.m. to 5:00 p.m.) |
4 hours(7:00 a.m. to 10:00 p.m.) |
Normal extension 1 hour(7:00 a.m. to 10:00 p.m.) |
Nighttime extension 1 hour(10:00 p.m. to 7:00 a.m.) |
||
| {{item.title}} | {{item.title}} | {{item.numberType1}} | {{item.numberType3}} | {{item.numberType4}} | {{item.numberType5}} | {{item.numberType6}} | {{item.priceType1}} | {{item.priceType2}} | {{item.priceType3}} | {{item.priceType4}} | |

Infrared wireless handheld microphone
Wired microphone
CD player
Large display (Boardroom front room)
Chair
Whiteboard
Laser pointer
iPad (for use as controller)
Large display (Boardroom)
Sub-display
The Boardroom, with its distinctive elegance, offers superb security because it is directly accessible from the vehicle drop off area. You can feel at ease holding meetings of executives or overseas VIPs. The front room can be used for coffee breaks or as a reception party space.
| Type of event | Executive meeting |
|---|---|
| Number of users | 20 people |
| Layout used | Square layout (fixed) |
Inquiries
Feel free to contact us to check on room availability or with any questions about our facility
Download materials
PDFs of AICC and room diagrams, power outlet layouts, etc.
Click here for Q&A and useful information about facility usageFrequently asked questions and useful information